
Golden Ratio House
A home, entirely based on the Golden Ratio






Concept
A home is a personal retreat, a place to rejuvenate, and recharge. A home is a place that is intimate, inspiring, comfortable, open, and connected to the outdoors.
A home should work for us, with the right elements in their right places. A home should provide both a sense of openness and a sense of privacy with separate quarters.
This home does all of these and it is based around the Golden Ratio, ensuring that all spaces have a strong proportional relationships that, when combined produces a balanced, proportionate and strongly relational living.


Golden Ratio proportion diagrams


The Golden Ratio is the most classic and elegant proportion form in existence. Many beautiful places that you may have visited contain the proportions of the Golden Ratio. This house utilises the proportion throughout the the layout in both plan and in section.
As such, all spaces are relational to each other - the entrance to the main living area, the kitchen to the living, the dining room to the Kitchen. The Rooms to their suites.


Plans
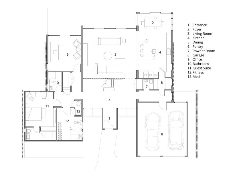
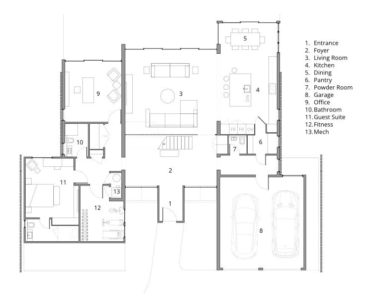
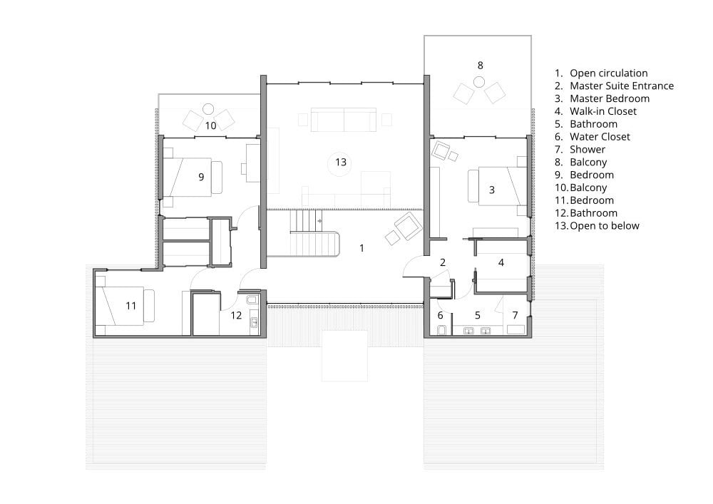
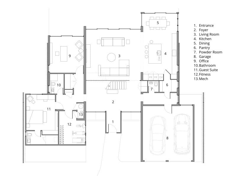
The home is centered around a double height open living area that is visible through most areas and connects to the Kitchen and dining area. The entrance exerience is combined, yet separate from the living area, with strong light filtering through the Japanese-inspired slat based windows.
The kitchen area is distinct, yet combined with the living in such a way that one could be cooking while talking to someone else in the living area. The appliances in the Kitchen are fully integrated to produce a unified and seamless aesthetic
Stemming from the Golden Ratio, the relationship from the Living room to the Kitchen is the same as from the Kitchen to the Dining area
Areas
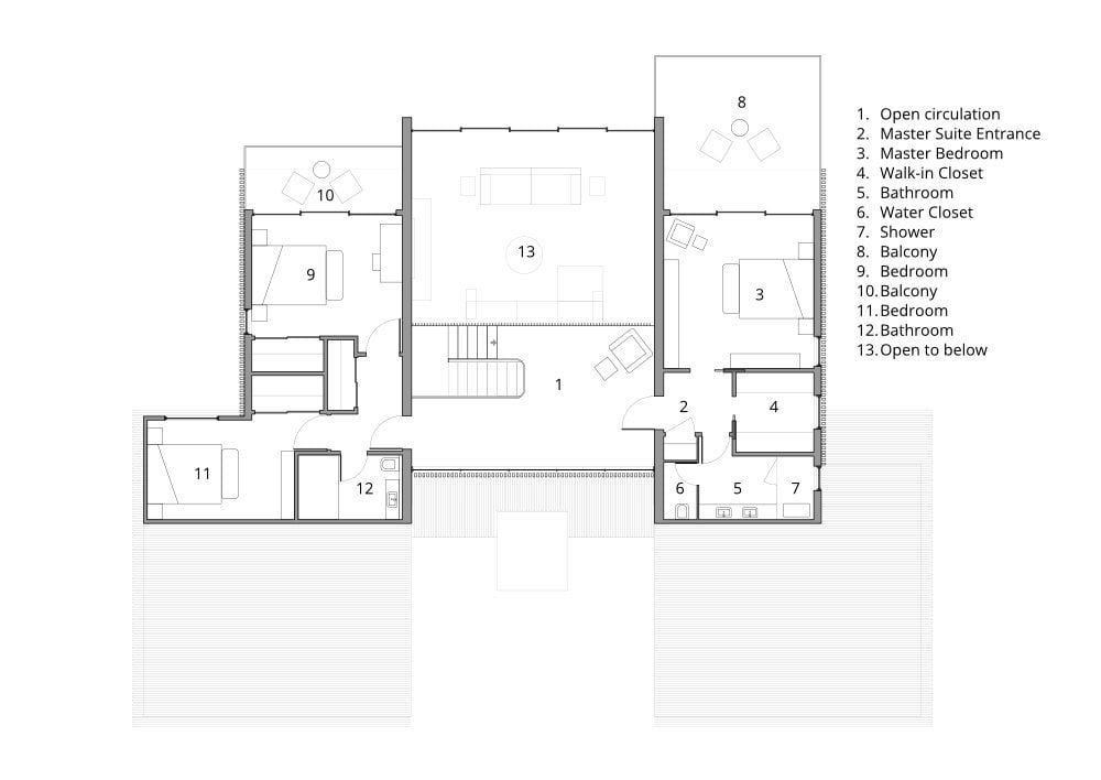
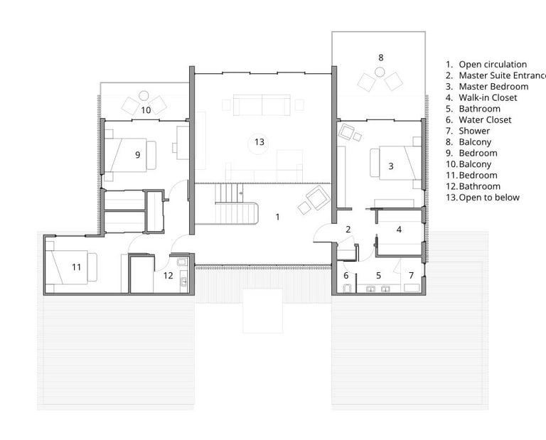
Total Area: 328 m2 - Ground Floor Area: 188 m2 (excluding garage of 40 m2). First Floor area: 100 m2. Master suite consisting of 36 m2.




First Floor Plan
Ground Floor Plan
Exterior
The exterior consists of strong and sharp lines, that are both further enhances and softened by the timber slats used through the sides, parapets, and roofs. The concept behind the exterior is to give the house a sense of a vacation home lodge feeling combined with a strong presence.
The rhythm of the house is composed of the central double height living and circulation space. The wings on either side are largely symmetrical, with the dining area protruding beyond the symmetry on one side and a bedroom protruding in the diagonal opposite of the house in the other wing.






Interior
While the exterior has strong and shapr lines, the interior is composed of softer and smoother elements. This has been created the balance the interior with the exterior and to produce a sense of calm on the interior.
The aesthetic is a modern take on retro futurism with strong Japanese influences, especially around the core of the house.











UH Studio
We are an architecture and design studio, passionate about beautiful design, improving cities, and education.
UH Studio Design Academy
Courses on architectural design, rendering, graphics, modeling, and more with Blender, Rhino, Geometry Nodes, Grasshopper, Affinity Photo, Affinity Design, Affinity Publisher, and Freecad
Community
Follow us for latest projects, professional tutorials, tips, and courses. Social Tags #uhstudio #dimitarsp #uhstudioacademy #blenderarchitecture
© 2025 UH Studio by Dimitar Pouchnikov. All rights Reserved.
